怎么看懂洁净工程图纸:EPURZAN荔枝视频APP下载污污黄色
发布者:荔枝视频APP下载污污黄色净化工程公司浏览次数:发布时间:2022-07-05
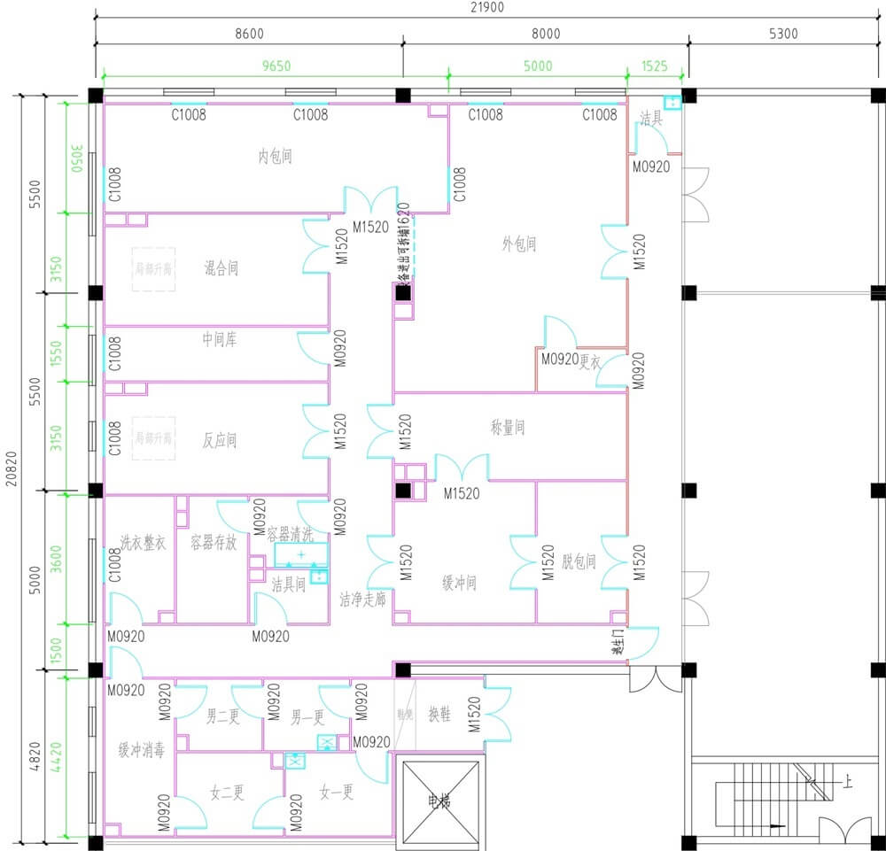
图纸是洁净工程中必不可少的东西,可能在设计的时候设计师按照正常方式来设计,但是荔枝视频在线观看无码却看不懂,或者一些数字数据代表什么都不清楚,下面具体讲下该怎么看懂图纸
1、首页要看图纸的总面积长宽高,然后根据图纸核对每个地方,每个数据是不是对
2、详尽看清每个标识及数据信息,随后拿着图纸去施工地一个一个的核对。
3、在平面设计图上,只有根据系统图来明确立管。也可以看得出立管的部位、尺寸、及其迈向。

4、看净化工程管路图纸,优先看图纸文件目录,再先后看设计方案施工说明、机器设备原材料表、过程流程图、平面设计图、系统图。繁杂的图纸还会继续有节点图和大样图,只能按序看上去,才可以给你全方位掌握全部系统软件。
5、风管平面图为多线风管、中央空调自来水管平面图为单线自来水管;净化工程平面设计图上标明风管水管规格、设计标高以及精准定位规格;各种中央空调、通风降温设备和附注的平面图部位;机器设备、附注、立管的序号。
6、切记一定要仔细仔细观察,并且根据实际来进行施工,不能不按图纸设计做出来的东西根本没有达到作用,这样不管怎样都是失败的。